ShengLandscapeRaumplan House là một căn nhà liền kề dành cho gia đình trẻ gồm bốn thành viên, những người mong muốn có một tổ ấm thoáng đãng và rộng rãi – nơi vừa nuôi dưỡng sự gắn kết thân mật giữa các thành viên, vừa tạo không gian sinh động để vui chơi và giao lưu giữa thiên nhiên.

Khu đất nằm kẹp giữa hai bức tường chung, có địa hình dốc từ trước ra sau và hướng Đông – Tây, khiến việc thông gió tự nhiên theo hướng gió chính bị hạn chế. Phía trước giáp mặt đường, trong khi phía sau mở ra một mảng xanh tươi mát hướng về khu biệt thự “đen – trắng” yên tĩnh.


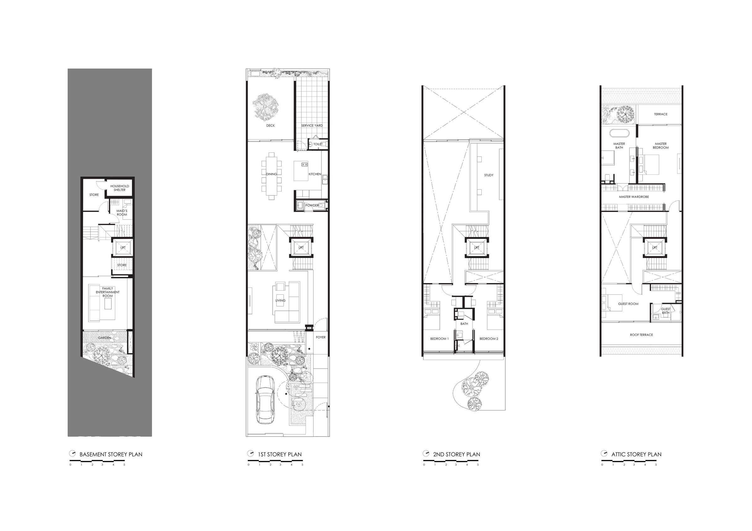
Ngôi nhà được thiết kế theo nguyên lý không gian phân tầng, lấy tâm là một giếng trời rộng lớn – nơi đón ánh sáng tự nhiên từ mái kính và thông gió bằng hiệu ứng ống khói. Dưới luồng nắng chiếu qua giếng trời, cụm cây ổi nhồi (Sterculia foetida) vươn cao xanh mát, che bóng cho các không gian tầng hầm phía dưới. Tận dụng địa hình dốc của khu đất, các sàn được bố trí lệch tầng quanh giếng trời, giúp việc di chuyển giữa các tầng trở nên dễ dàng, đồng thời tạo nên sự kết nối thị giác liên tục giữa các không gian ở các cao độ khác nhau.

Các sàn lệch tầng tạo điều kiện cho khối đế – kể cả tầng hầm – được mở hoàn toàn, cho phép ánh sáng, gió và cảnh quan vườn xanh thấm sâu vào không gian bên trong. Trong khi đó, các khu vực riêng tư được bố trí ẩn mình ở các tầng trên. Mặt đứng ngôi nhà thể hiện rõ mối quan hệ không gian bên trong: phần trên được bao phủ bởi lớp lưới kim loại tối màu, vừa đảm bảo riêng tư vừa che nắng hiệu quả.



Không gian sống lệch tầng – vốn được Adolf Loos phổ biến qua khái niệm Raumplan – thường đặt ra thách thức về khả năng tiếp cận, đặc biệt trong những ngôi nhà có diện tích hạn chế. Chúng tôi giải quyết điều này bằng cách điều chỉnh cấu trúc lõi thang – thang máy quây gọn. Nhờ sử dụng thang máy có cửa mở hai đầu, hệ thống này có thể dừng tại tất cả các chiếu nghỉ, kết nối linh hoạt giữa các tầng lệch khác nhau trong nhà.













Thông tin dự án
Kiến trúc sư: Formwerkz Architects
Địa điểm: Singapore
Năm hoàn thành: 2023
Loại hình: Nhà ở tư nhân
Nguồn bài viết: archello.com
Officce: 284/57 Lý Thường Kiệt, Phường 14, Quận 10, TP HCM
0969 79 76 19 -
[email protected]| LIÊN KẾT | ![]() |